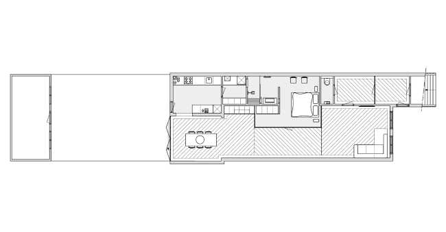
The renovation of "Bedroom in the middle" is designed and led by Amsterdam-based architecture firm Robbert de Goede. The designers choose to eliminate all pre-existing partitions and make a wide 3-meter opening in the load-bearing wall in the middle of the apartment. From this new opening they are able to create a large central bedroom with a dedicated bathroom


"Bedroom in the middle" project: from dark basement house to a luxurious pied a terre
“Bedroom in the middle” is the renovation project of a low-light apartment in the center of Amsterdam, featuring a series of small rooms, into a pied a terre embellished with fine finishes ideal for a couple who frequent the city on weekends
- #Architectures>
- #Residence>
- #Apartment>
- #Restyling>
- #Interior>
- #Renovation>

The goal was to get a minimum of natural light into the bedroom. The glass walls used to enclose the room allow the intent to be fulfilled and in addition allow the breadth of the apartment to be perceived in its entirety, creating a more spacious feeling

The designers studied a special layout for the wood plank flooring; they chose the diagonal laying that cuts across the apartment dividing it into three distinct areas: living room, transition to the bedroom and dining room.
The bedroom can be enclosed with two layers of curtains: one semi-transparent and one fully obscuring so as to allow varying degrees of privacy

Glazed walls rising from floor to ceiling, as well as wood cabinets and full-height doors, give the perception of a higher space and make the design more linear and elegant. The Occhio lights, recessed into the ceiling, provide excellent illumination, and the darkness of the old apartment remains just a memory anymore. Other technical features include underfloor heating and a controlled ventilation system that allows optimal air exchange even in the closed bedroom

Gallery
Photo credits
Top image, content and gallery images: Robbert De Goede
Drawings: Robbert De Goede

















