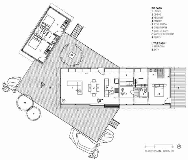
The cabin as an expressive form of tradition and modernity
The word "cabin" manages to evoke a variety of romantic images: a place to gather the family, rest in nature after a long day, warm your hands by the fire. The cabin by Renée del Gaudio Architecture, a renowned studio specializing in architectural projects that harmonize spaces with their context, seeks to embody the character and feeling of a traditional cabin within a purely modern framework.




















