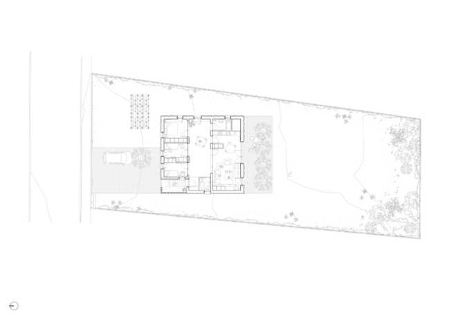
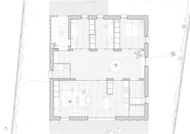
The Central Space of the House: Bioclimatic Atrium
The designers at Slow Studio, a studio specialized in eco-friendly architectural projects, envision a central space that captures light and warmth. For Casa en Massís del Garraf, this space is created in the form of a covered atrium with south-facing openings in the part that rises above the roof: the rooms are organized around this bioclimatic atrium. The double-height central space accumulates heat thanks to an upper opening to the south and helps to temper the rooms in the north zone and generate cross ventilation.























