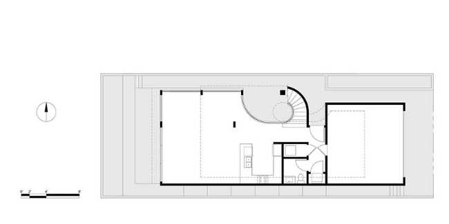
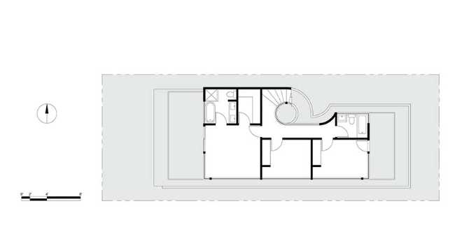
The vortex open towards the sky
Martin Fenlon Architecture studio designs the villa at Sunset Terrace as an architectural organism where the outdoor space enters and exits the house through an oculus open towards the sky. This curvilinear void characterizes and distributes the entire living space






















