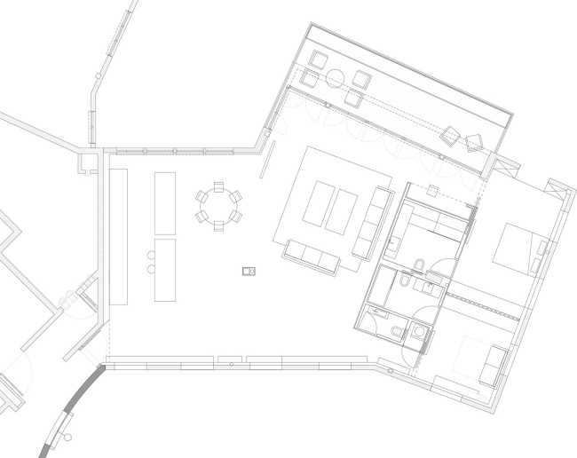
Architect Irit Axelrod converts a large and asymmetrical 200-square-meter apartment, as defined by the designer as "a light-filled shell," into a modern loft that exposes the original structure: the rough concrete ceiling, a heavy structural pillar, the electrical system, and ventilation ducts are all exposed. The plan for the loft in Tel Aviv is to create a home tailored to the owner's lifestyle as well as the perfect showcase for his book and art collections


House-art showcase in the former Zamenhof Clinic in Tel Aviv: a Bauhaus-style loft
A Bauhaus-style loft located in the iconic Zamenhof Clinic building in Tel Aviv, whose form has been preserved in the building's 21st-century transformation into a luxury residential complex
- #Asia>
 - #Israel>
 - #Architectures>
 - #Building recovery>
 - #Residence>
 - #Loft>
 - #Restyling>
 - #Interior>
 - #Interior Design>
 

Challenged by a space with abstruse angles in a non-orthogonal building, Axelrod chose to "overlay" the corners, considering it a single room invaded by a self-supporting black patinated volume. The solid seems to float in space, diverging from all perimeter walls of the loft; one of its long sides provides a backdrop to the living area, where it acts as a setting for the artwork, while hiding within it the all the services to living: the elegant bathrooms, for guests and for the master, the laundry room and a storage room

The spacious master and guest bedrooms, located in the open space beyond the black storage, are separated by a custom-made wardrobe above which a glass wall extends to the ceiling to provide total privacy while maintaining the fluidity of the space. The full-height doors that separate the rooms from the living area when needed are sliding concealed in the black volume. Tucked into the fourth side of the patinated block, a work of art in itself, is a recessed desk nook naturally lit by the light coming in from the large windows on the terrace

The almost uninterrupted and equidistant repetition of windows on the loft's perimeter walls, a legacy of the medical clinic purpose with which the building was conceived, represent the project's second challenge: Axelrod conceives of a simple black shelving system that interacts sculpturally with the uniformity of the windows, serving as a display for books and artwork.   
The interplay of black, white, and gray materials and finishes is softened by the brown oak floors, whose herringbone design echoes and challenges the loft's orthogonal angles and softens the loft atmosphere. In contrast, the stainless steel kitchen islands and aluminum cabinets play emphasizing the industrial look

Lighting is a key design element for this loft; the lights are designed to follow and emphasize the architecture and layout, adding shadows and chiaroscuro effects as evening falls. 
The clean lines, open space, and limited color palette reflect the owner's personality, giving him a space that is home and gallery, protected from the outside chaos of the Tel Aviv neighborhood in which the building is located. A noisy, crowded and rather city-weary neighborhood where urban regeneration is advancing, one building at a time

Gallery
Photo credits
Top image, content and gallery images: Amit Geron
Drawings: Axelrod Architects












