"Zpomaluji krok přijdu mnohem později avšak vidím víc"
(I am slowing down I will come much later but I see more).
esté architekti for the Loving Bistrò in Prague's Letná district draw lightness and a tranquil atmosphere through the open space, high ceiling and light.
A place where one can stop to eat, but also to meet or to be alone, quietly observing the hectic life that flows nonstop outside


Tranquility and lightness: the mood board of Loving Bistro in Prague
Poetic verses by Petr Petřiček screen-printed on the windows, project onto the soft-toned interior of Loving Bistrò and induce the passerby to slow down and think. The atmosphere of the restaurant is transformed to induce tranquility, not only because of the stylistic choices of the intervention, but also because of the patron's peaceful philosophy of veganism
- #Europe>
- #Czech Republic>
- #Architectures>
- #Restaurant>
- #Restaurant>
- #Restyling>
- #Interior>
- #Interior Design>

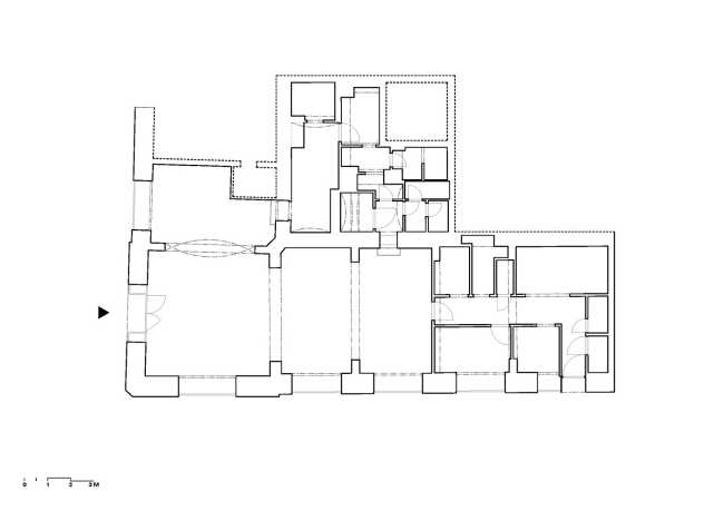
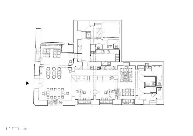
The ground floor of the historic corner building that is home to the new Loving Bistro has housed businesses served by large storefronts since its construction by architect and builder František Leypold. The originally all separate stores underwent gradual modifications over time, with gradual mergers through a pattern of portals that pierced the load-bearing walls. The renovation project to settle the bistro included moving the kitchen deep into the floor plan, allowing the portals to be widened and the floor level previously distributed over several levels. The original aluminum frames of the storefronts, although not perfect, were preserved with minimal intervention. The architects' philosophy holds that it is not always necessary to change everything.

Clean, minimalist surfaces were deliberately used in the design of the Loving Bistro as a neutral backdrop to enhance the colors of the food, people, and events taking place inside. The space is dominated by a wooden self-service counter with a glazed refrigerated display case and the necessary gastronomic equipment. The main view, framed by four regular doorways, is enclosed by a wall of wooden slats with retractable doors. Other ash wood elements were custom made, coloring the interior with a combination of light gray finishes, Lasure cladding and ceramic mosaics. Everything is connected by the purity of white-painted walls and splashes of green indoor plants

Seating varies from the classic table "for two," to taller bar tables and counters in store windows; one can sit on a bench, at a large group table or on individual bar stools at metal hanging tables, satisfying various situations and moods. In warm seasons, the plants are brought out into the street to form a summer patio with pleasant seating among the foliage

Gallery
Photo credits
Top image, content and gallery images: Studio Flusser
Drawings: esté architekti

















